中古一戸建て

南河内郡河南町神山 売テラスハウス

美しい綺麗な街並み

子供たちも独立自立し たくさんの部屋が不要となり てばなすおもいになった

車も2台OK車種による 西南向きの角地で大変明るい

閑静で美しい街並み

図面は現状優先です
大阪府南河内郡河南町神山売テラスハウス
所在地
大阪府南河内郡河南町神山
交通
バス停「寛弘寺」乗車15分 徒歩5分
価格
500万円ローンシミュレーター
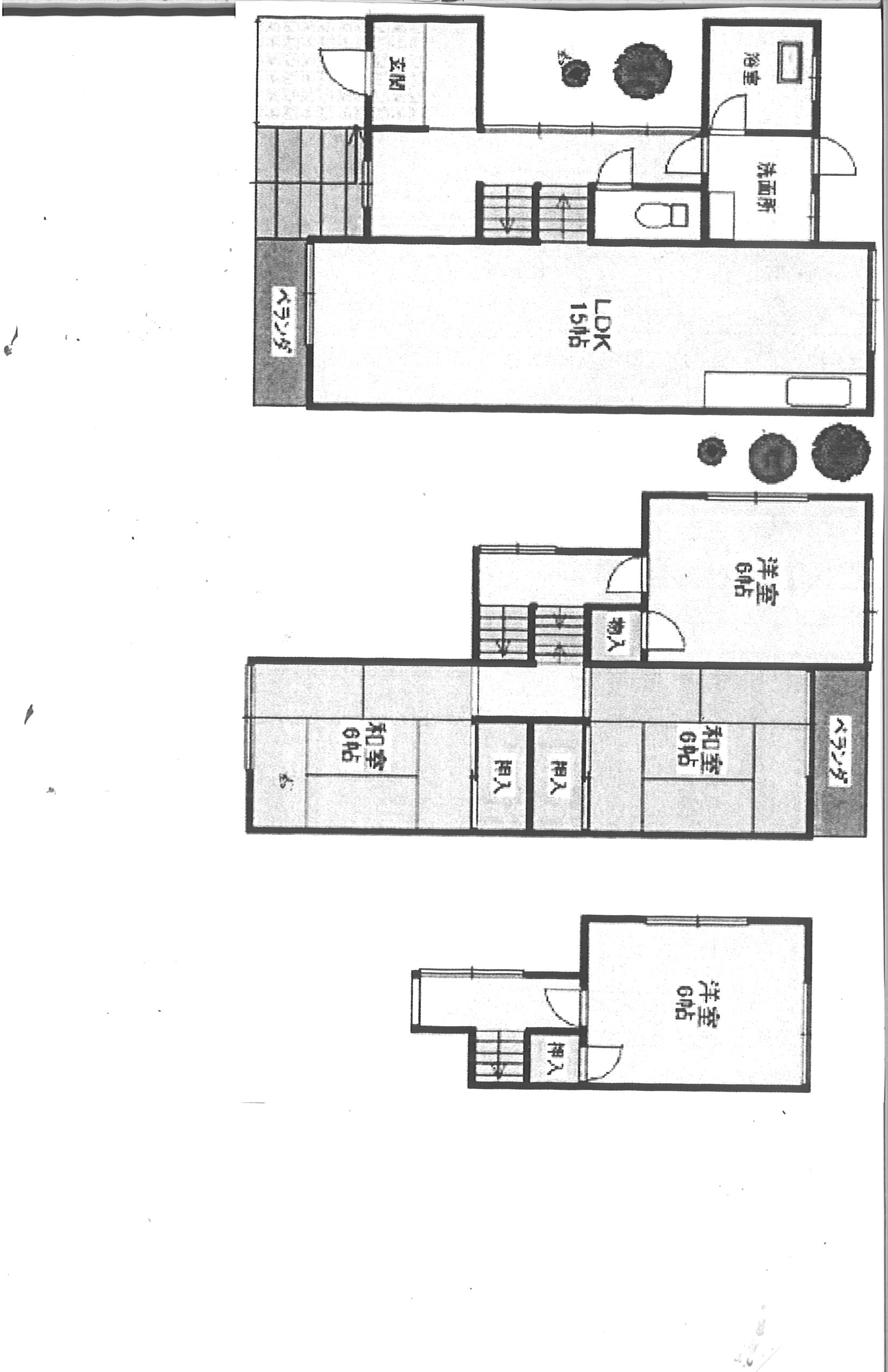
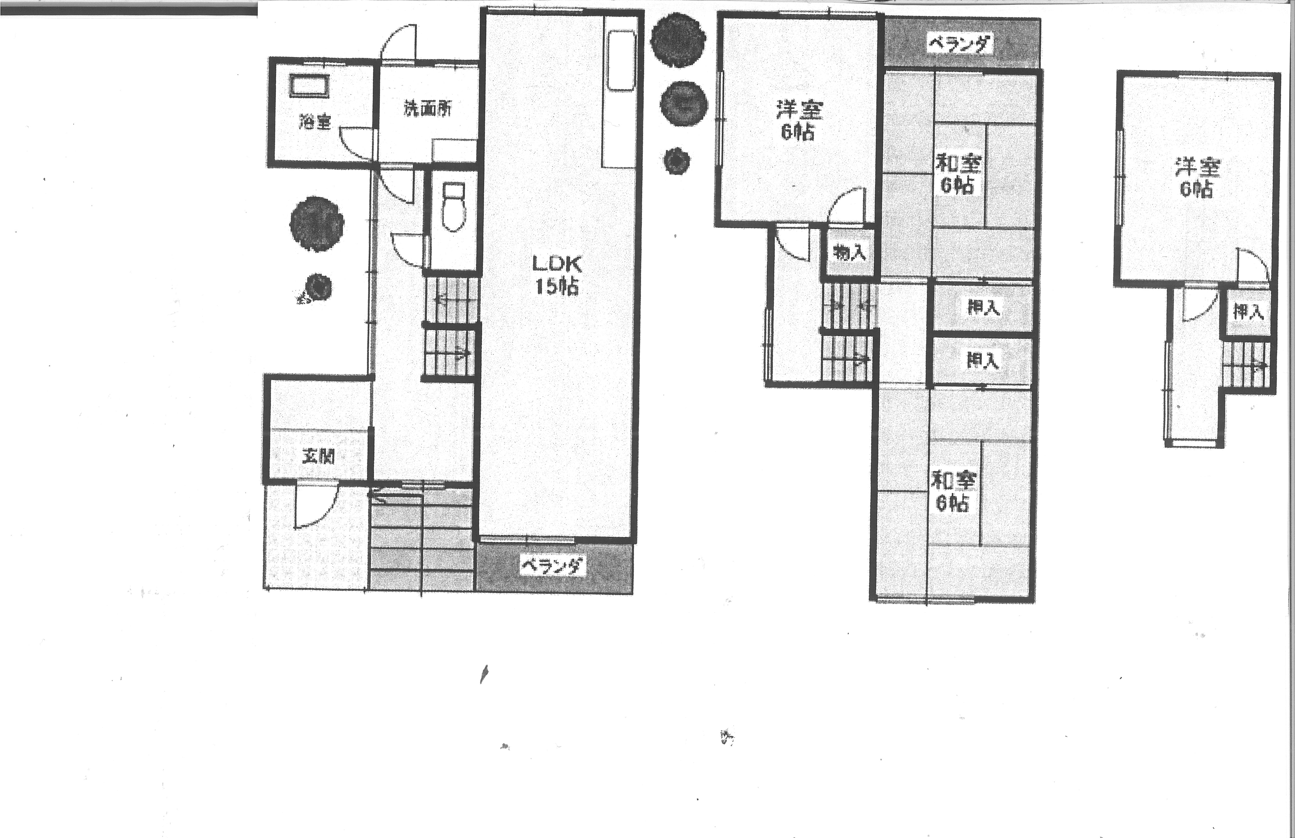
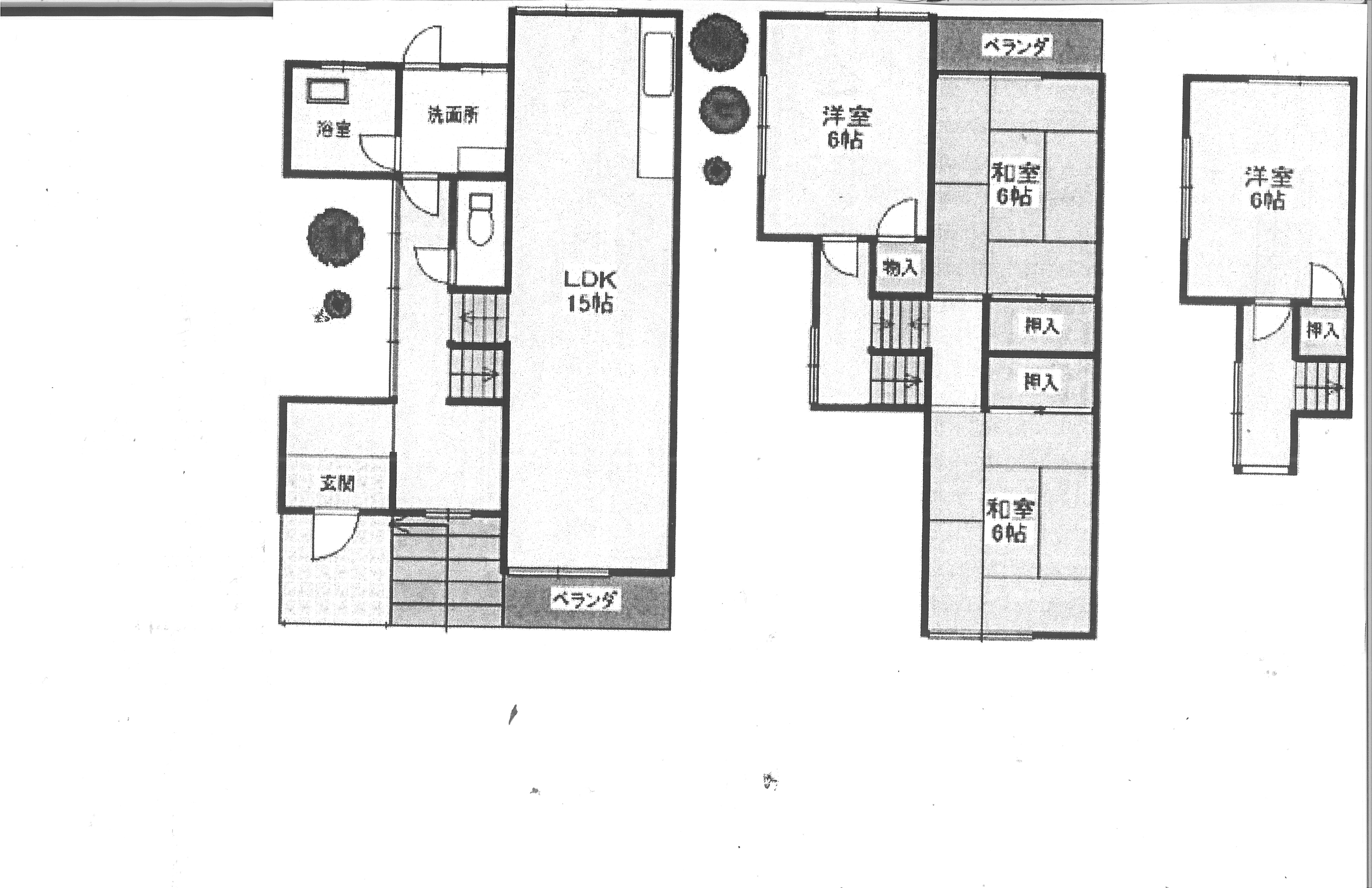
間取り
4LDK
専有面積
93.09㎡
築年数
1990年3月(築35年)
建物面積
93.09㎡
土地面積
公簿 80.25㎡

写真ギャラリー

大阪府南河内郡河南町神山売テラスハウス
案内図

物件概要

MAP
大きな地図で見る
交通 バス停「寛弘寺」乗車15分 徒歩5分
所在地 〒585-0034 大阪府南河内郡河南町神山
価格 500万円 地代 -
権利金 - 保証金 -
取引態様 専任
建物構造 木造 地上階 3階
土地権利 所有権 駐車場
土地面積 公簿 80.25㎡(24.28坪) 建ぺい率 60.00%
容積率 200.00% 角地 角地
都市計画 調整区域 用途地域 準住居
地目 宅地 地勢 平坦
建物面積 93.09㎡(28.16坪) 現況 空家
引渡し 即時
間取り 4LDK
専有面積 内法 93.09㎡(28.16坪)

設備・条件

この物件のこだわり
  • 手数料優遇
  • 日当り良好
  • 2面採光
  • 全室2面採光
  • 3面採光
  • デザイナーズ
  • スマートハウス
  • ロードヒーティング
  • バリアフリー
  • 二世帯向き
  • オール電化
  • 24時間換気システム
  • 吹抜
  • リノベーション
  • 古民家
その他 全居室収納、プロパンガス、駐車場2台分
情報掲載日 2026年2月14日 次回情報更新予定日 2026年3月14日
情報提供元
コ ス モ 住 建
[ 大阪府知事免許(8)30221 ]
大阪府富田林市本町21番5号
【所属団体】
公益社団法人 全日本不動産協会
不動産競売流通協会
コ ス モ 住 建

間取り

Noimage
タイプ
所在階
価格
間取り 4LDK
専有面積 93.09㎡
コ ス モ 住 建
0721-23-5093
営業時間/9:00~19:00
定休日: 水曜日 年末年始・夏期休暇
  • ※営業時間外は電話がつながらないことがございますのでご了承ください。
  • ※お問合せの際に、「不動産広場を見て」とお伝えいただくと話がスムーズに進みます。
  • 【物件番号】1768477794527
  • ※完成後1年未満で未入居の物件を「新築」と表示しております。
  • ※完成予想図やCG合成画像は、門塀・植栽・庭・外観等、実際とは多少異なる場合があります。