売戸建住宅

横須賀市安浦町三丁目 売戸建住宅

満室
神奈川県横須賀市安浦町三丁目売戸建住宅
販売価格
1,590万円
収益シミュレーション

表面利回り
8%
利回りとは 一般的に使われている利回りとは想定利回りを指し、 年間の家賃収入を物件購入価格で割ったものです。 購入時の経費やアパート経営に必要な諸経費を考慮に入れておりません。 表面利回り、単純利回りとも言います。 想定利回り(%)=年間収入÷物件価格×100
実質利回り
取扱店舗へお問合せください 実質利回りとは 実質利回り(%)=(年間収入-(管理費+修繕積立金+固定資産税等))÷物件価格+諸費用※)×100 ※諸費用は物件によりますので、サイト上に表示されている実質利回りの計算には含んでおりません。 現状、さまざまなサイトで出ている「利回り」は”想定利回り”と言って、管理費や修繕積立金、固定資産税などを全く鑑みない数字です。 ゆえに、”想定利回り”を指標に購入してしまうと、実際ふたを開けてみたら、思ったよりも手取りが少ないという事もまれではありません。 「実質利回り」とは、上記の用に管理費や修繕積立金、固定資産税などを差し引いたパーセンテージであり、不動産のプロはこの「実質利回り」を指標に購入をします。 不動産広場は売主直で依頼されている不動産業者が扱う物件のみ掲載されているので「実質利回り」の表示が可能なのです。

満室時
年間収入
127.2万円
年間収入とは 年間収入とは、一年間に賃借人から支払われる家賃の合計額を指します。
実質年間
収入
取扱店舗へお問合せください 実質年間収入とは 実質年間収入とは、管理費や固定資産税などの諸経費を差し引いた後、手元に残る金額

  • 専有面積:-
  • 築年月:平成18年10月(築19年)
  • 階数:3階建
  • 建物構造:木造
  • 所在地:神奈川県横須賀市安浦町三丁目42-4
  • 沿線交通:京浜急行本線「県立大学」駅 徒歩3分

駅まで徒歩3分の商業地域。土地権利は所有権。

単純売却です。満室賃貸中、表面利回り8%

1階部分はペットサロン、2・3階部分は居住用として利用されています。

人気の平坦地。
賃貸中につき、お引渡し後に即家賃収入が発生します。

近隣(徒歩1分)月極駐車場空有。月額13,000~15,000円。

写真ギャラリー

神奈川県横須賀市安浦町三丁目売戸建住宅
外観
神奈川県横須賀市安浦町三丁目売戸建住宅
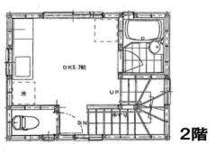
地形図等 間取図
神奈川県横須賀市安浦町三丁目売戸建住宅
外観
神奈川県横須賀市安浦町三丁目売戸建住宅
キッチン
神奈川県横須賀市安浦町三丁目売戸建住宅
キッチン
神奈川県横須賀市安浦町三丁目売戸建住宅
トイレ
神奈川県横須賀市安浦町三丁目売戸建住宅
バス
神奈川県横須賀市安浦町三丁目売戸建住宅
室内
神奈川県横須賀市安浦町三丁目売戸建住宅
収納
神奈川県横須賀市安浦町三丁目売戸建住宅
玄関
神奈川県横須賀市安浦町三丁目売戸建住宅
玄関
神奈川県横須賀市安浦町三丁目売戸建住宅
コンビニ ファミリーマート佐野寅二安浦店
神奈川県横須賀市安浦町三丁目売戸建住宅
銀行 かながわ信用金庫安浦支店
神奈川県横須賀市安浦町三丁目売戸建住宅
郵便局 横須賀三春西郵便局
神奈川県横須賀市安浦町三丁目売戸建住宅
ショッピング施設 LIVINよこすか

物件概要

MAP
大きな地図で見る
交通 京浜急行本線「県立大学」駅 徒歩3分
所在地 〒238-0012 神奈川県横須賀市安浦町三丁目42-4
価格 1,590万円 地代 -
権利金 - 保証金 -
取引態様 一般
建物構造 木造 地上階 3階
土地権利 所有権 特記 オーナーチェンジ
年間予定賃料収入 127.2万円 利回り 8.00%
駐車場 近有 15,000円/月 駐車場形式 自走式
土地面積 公簿 23.56㎡(7.13坪) 建ぺい率 80.00%
容積率 400.00% 都市計画 市街化区域
用途地域 商業地域 地目 宅地
地勢 平坦 国土法 国土法事前確認済
再建築 建物面積 49.68㎡(15.03坪)
現況 賃貸中 入居状況 満室
引渡し 即時 接道状況 [北西] 道路幅員14m 公道 接面5.45m
間取り 1DK
周辺環境 [コンビニ] ファミリーマート佐野寅二安浦店まで150m [銀行] かながわ信用金庫安浦支店まで210m [郵便局] 横須賀三春西郵便局まで250m [ショッピング施設] LIVINよこすかまで600m

設備・条件

この物件のこだわり
  • 手数料優遇
  • 日当り良好
  • 2面採光
  • 全室2面採光
  • 3面採光
  • デザイナーズ
  • スマートハウス
  • ロードヒーティング
  • バリアフリー
  • 二世帯向き
  • オール電化
  • 24時間換気システム
  • 吹抜
  • リノベーション
  • 古民家
その他 追焚機能、浴室暖房、浴室乾燥機、温水洗浄便座、全居室収納、クローゼット、照明器具、プロパンガス、全居室フローリング、電気、上水道、下水道、エアコン、火災警報器(報知機)
情報掲載日 2025年12月21日 次回情報更新予定日 2026年1月18日
情報提供元
ミカサホーム(株)
[ 神奈川県知事(10)15019 ]
神奈川県横須賀市追浜町二丁目7-5 追浜ミカサbldg.
【所属団体】
(公社)神奈川県宅地建物取引業協会
ミカサホーム(株)
ミカサホーム(株)
046-866-0055
営業時間/10:00~18:00
時間外対応(要予約)
定休日: 火曜日、水曜日 年末年始・夏季休暇
  • ※営業時間外は電話がつながらないことがございますのでご了承ください。
  • ※お問合せの際に、「不動産広場を見て」とお伝えいただくと話がスムーズに進みます。
  • 【物件番号】1496546593939
  • ※完成後1年未満で未入居の物件を「新築」と表示しております。
  • ※完成予想図やCG合成画像は、門塀・植栽・庭・外観等、実際とは多少異なる場合があります。

この物件を見た人は、こんな物件も見ています。