不動産広場TOP
不動産広場とは?
保存した物件リスト
ようこそ、
ゲスト
さん
LOGIN
新規会員登録
ID・パスワードを忘れた方は、
こちら
「元付・売主物件」専門検索サイト | マイホーム
売り物件の情報を詳しく知っているからこそ、購入するお客様へ安心してオススメできる物件です。
元付・売主物件って何?
元付・売主専門 不動産広場
>
マイホーム
>
甲信・北陸
>
長野県
>
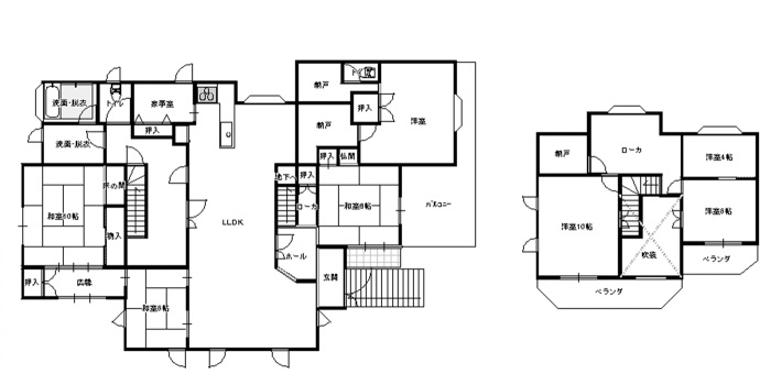
値下げ!7NNNLLDK+ガレージ★美邸★邸宅★。長野県駒ヶ根市飯坂の売戸建住宅
該当物件の掲載は終了しました
掲載中の物件情報は状況に応じ常に更新されています。
そのため、ご覧いただくタイミングによっては物件情報が表示されない場合があります。
中古一戸建て
駒ヶ根市飯坂 売戸建住宅
お問合せ
この物件を保存する
印刷画面
(株)気賀沢不動産
0265-83-2321
営業時間/9:00~18:00
土、日、祝日9:00~17:00
定休日: 年末年始、お盆
※営業時間外は電話がつながらないことがございますのでご了承ください。
※お問合せの際に、「不動産広場を見て」とお伝えいただくと話がスムーズに進みます。
お問合せ
この物件を保存する
ツイート
【物件番号】1730782652254
※完成後1年未満で未入居の物件を「新築」と表示しております。
※完成予想図やCG合成画像は、門塀・植栽・庭・外観等、実際とは多少異なる場合があります。
この物件を見た人は、こんな物件も見ています。
<
>
セルリアンハイツ
駅徒歩5分の好立地!ペット飼育可。セルリアンハイツ
1,290
万円
7
.2%
詳細を見る
横須賀市追浜東町1丁目 売戸建住宅
仲介手数料無料。神奈川県横須賀市追浜東町1丁目の売戸建住宅
828
万円
10
%
詳細を見る
松福マンション1号棟、2号棟
人気の南武庫之荘。松福マンション1号棟、2号棟
22,000
万円
7
%
詳細を見る
東カン名古屋キャステール
ホテル感覚の多目的マンションの賃貸用物件誕生!!。東カン名古屋キャステール
600
万円
9
.24%
詳細を見る
府中市四谷4丁目 売地
土地約38坪 南側道路面 建築条件なし。東京都府中市四谷4丁目の売地
3,198
万円
詳細を見る
八尾市西山本町 売戸建住宅
小学校近くの安心の住環境 八尾市西山本町・駐車場付き3LDK戸建て。大阪府八尾市西山本町の売戸建住宅
2,980
万円
3
.42%
詳細を見る
アストンヴィラ
三方道路のマンション。アストンヴィラ
19,000
万円
6
.47%
詳細を見る
松原市天美東 売テラスハウス
松原市・長屋再生向き戸建て 補助金活用も検討できる“改善型”投資物件。大阪府松原市天美東の売テラスハウス
200
万円
18
%
詳細を見る
丹生郡越前町大王丸 店舗・事務所
1階賃貸中・2階空室の“用途選べる”物件 年間収入216万円/表面利回り13.5%の収益+実需併用型**。福井県丹生郡越前町大王丸の店舗・事務所
1,600
万円
13
.5%
詳細を見る
▲