中古一戸建て

上伊那郡飯島町本郷 売戸建住宅

平成31年リフォーム済み★修繕不要★

処分

平成9年増築、平成31年リフォーム済み★
オール電化★
駐車4~5台★
小中学校2km圏内★
残置物は売主負担にて撤去処分★

建物内外状態良し★修繕不要★
長野県上伊那郡飯島町本郷売戸建住宅
所在地
長野県上伊那郡飯島町本郷2406-449
交通
飯田線「伊那田島」駅 徒歩32分
価格
1,280万円ローンシミュレーター
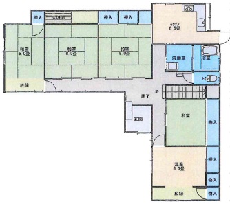
間取り
~ 6SDK
築年数
1976年12月(築49年)
建物面積
163.15㎡
土地面積
公簿 373.4㎡

写真ギャラリー

長野県上伊那郡飯島町本郷売戸建住宅
外観
長野県上伊那郡飯島町本郷売戸建住宅
室内
長野県上伊那郡飯島町本郷売戸建住宅
キッチン
長野県上伊那郡飯島町本郷売戸建住宅
バス
長野県上伊那郡飯島町本郷売戸建住宅
トイレ
長野県上伊那郡飯島町本郷売戸建住宅
洗面

物件概要

MAP
大きな地図で見る
交通 飯田線「伊那田島」駅 徒歩32分
所在地 〒399-3704 長野県上伊那郡飯島町本郷2406-449
価格 1,280万円 地代 -
権利金 - 保証金 -
取引態様 一般
建物構造 木造 地上階 2階
土地権利 所有権 土地面積 公簿 373.4㎡(112.95坪)
セットバック 建ぺい率 60.00%
容積率 200.00% 都市計画 非線引区域
用途地域 準工業 地目 宅地
地勢 平坦 建物面積 163.15㎡(49.35坪)
現況 空家 引渡し 即時
仲介手数料 488,400円 接道状況 [北] 公道
間取り1 6SDK

設備・条件

この物件のこだわり
  • 手数料優遇
  • 日当り良好
  • 2面採光
  • 全室2面採光
  • 3面採光
  • デザイナーズ
  • スマートハウス
  • ロードヒーティング
  • バリアフリー
  • 二世帯向き
  • オール電化
  • 24時間換気システム
  • 吹抜
  • リノベーション
  • 古民家
その他 バス1坪以上、追焚機能、トイレ2ヶ所、温水洗浄便座、IHクッキングヒーター、システムキッチン、クローゼット、出窓、電気、上水道、浄化槽、駐車場3台分
情報掲載日 2026年1月21日 次回情報更新予定日 2026年2月18日
情報提供元
(株)気賀沢不動産
[ 長野県知事(3)5209 ]
長野県駒ヶ根市赤穂10110-8
【所属団体】
(公社)長野県宅地建物取引業協会
(公財)東日本不動産流通機構
(株)気賀沢不動産

設備

キッチン

バス

トイレ

洗面

間取り

タイプ
所在階
価格
間取り 6SDK
専有面積
タイプ
所在階
価格
間取り
専有面積
(株)気賀沢不動産
0265-83-2321
営業時間/9:00~18:00
土、日、祝日9:00~17:00
定休日: 年末年始、お盆
  • ※営業時間外は電話がつながらないことがございますのでご了承ください。
  • ※お問合せの際に、「不動産広場を見て」とお伝えいただくと話がスムーズに進みます。
  • 【物件番号】1767932629180
  • ※完成後1年未満で未入居の物件を「新築」と表示しております。
  • ※完成予想図やCG合成画像は、門塀・植栽・庭・外観等、実際とは多少異なる場合があります。

この物件を見た人は、こんな物件も見ています。