中古マンション

サーパス南千田橋

サーパス南千田橋

2025年11月フルリノベーション済み

売主様のあんしん既存住宅売買瑕疵保険加入で引き渡し後も安心

フルリノベーション済み。小、中学校、病院等の施設が徒歩圏内で生活しやすい住環境です。(ご成約特典(商品券)対象物件)

※本件を弊社にてご成約の方に商品券10万円プレゼント(物件引き渡し時)

※2025年11月フルリノベーション済みで周辺環境も利便性が良く、売主様のあんしん既存住宅売買瑕疵保険加入で引き渡し後も安心です。
※敷地外駐車場ですが徒歩3分近隣駐車場は屋根付きで愛車の保護には安心です。

※内覧希望ございましたらお気軽にお問い合わせください。

※本件以外の事でも不動産の購入、売却、建物リフォームやご一族の相続対策やお悩みまで
まで幅広い分野でご相談を承る事が可能です。


※弊社代表が多数の資格保有をしております。(不動産、相続、建築、土木、給排水等)
※弁護士、司法書士、税理士等各専門士業や保険業の方々と協業しております。
お気軽にご相談ください。
サーパス南千田橋
所在地
広島県広島市中区吉島東1丁目 サーパス南千田橋 312
交通
広島電鉄徒歩15分
価格
3,790万円ローンシミュレーター
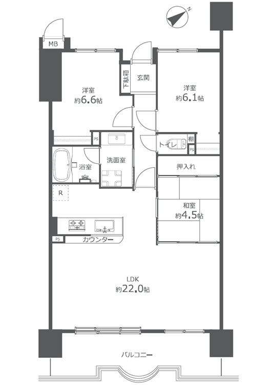
間取り
3LDK
専有面積
内法 79.81㎡
築年数
平成11年6月(築26年)

写真ギャラリー

物件概要

MAP
大きな地図で見る
交通 広島電鉄徒歩15分
所在地 広島県広島市中区吉島東1丁目 サーパス南千田橋 312
価格 3,790万円 管理費 4,800円/月 平米単価 47.49万円/㎡
修繕積立金 7,600円/月 地代 -
権利金 - 保証金 -
取引態様 一般
建物構造 PC 地上階 14階
所在階 3階 土地権利 所有権
専有面積 内法 79.81㎡(24.14坪) 総戸数 165戸
間取り 3LDK
情報掲載日 2026年3月6日 次回情報更新予定日 2026年4月3日
情報提供元
(有)ユキ住宅設備
[ 広島県知事(3)第9994号 ]
広島県広島市安芸区矢野西1丁目8-3-15
【所属団体】
全日本不動産協会
不動産競売流通協会
(有)ユキ住宅設備
2025年11月 内容:2025年11月リフォーム完了:システムキッチン・ユニットバス・洗面化粧台・洗濯機防水パン・温水洗浄機能付トイレ・玄関収納新規交換、浴室乾燥機・LEDセンサーライト・LEDダウンライト新規設置、フローリング・クロス張替、畳表替え、襖張替え、エアコン先行配管工事実施、カーテンレール交換、ハウスクリーニング他 住宅ローン控除・フラット35適合 あんしん既存住宅売買瑕疵保険加入

間取り

Noimage
タイプ
所在階
価格
間取り 3LDK
専有面積
(有)ユキ住宅設備
082-888-5382
  • ※営業時間外は電話がつながらないことがございますのでご了承ください。
  • ※お問合せの際に、「不動産広場を見て」とお伝えいただくと話がスムーズに進みます。
  • 【物件番号】1772801005876
  • ※完成後1年未満で未入居の物件を「新築」と表示しております。
  • ※完成予想図やCG合成画像は、門塀・植栽・庭・外観等、実際とは多少異なる場合があります。